
Aquesta setmana han començat les obres de remodelació integral dels vestidors i accessos del Pavelló d’Hoquei Municipal de Vilafranca, un dels equipaments esportius més emblemàtics i utilitzats de la vila.
L’actuació, amb una inversió de gairebé 1,3 milions d’euros i una durada prevista de sis mesos, té com a objectiu modernitzar les instal·lacions per millorar-ne el confort, la funcionalitat i l’eficiència energètica.

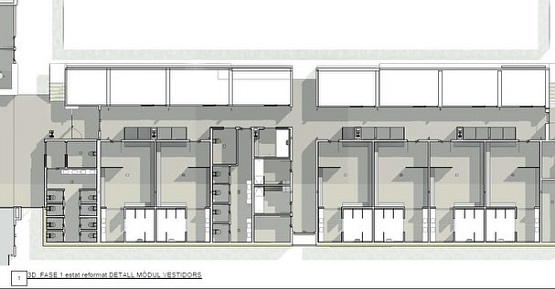
El projecte contempla la construcció d’un nou mòdul de 840 m² que permetrà ampliar i reorganitzar l’espai de vestidors. Un cop finalitzades les obres, el pavelló disposarà de 6 vestidors per a esportistes i 3 per a àrbitres, amb un disseny flexible que dona servei a les dues pistes existents. També s’hi habilitarà una zona exterior amb armariets individuals, pensada per optimitzar l’ús dels espais i reduir despeses.
Una de les millores més destacades és la creació d’un punt de control d’accessos, que garantirà una millor gestió dels fluxos d’entrada i augmentarà la seguretat. El projecte segueix criteris d’accessibilitat universal, assegurant que totes les persones, incloses aquelles amb mobilitat reduïda, puguin fer-ne ús amb comoditat.

A més, s’inclou la renovació de les instal·lacions amb sistemes d’alta eficiència energètica, així com la reforma dels lavabos públics, la reubicació del bar i la millora de la connexió entre les pistes.
Les obres es faran en dues fases per garantir la continuïtat de les activitats esportives, amb vestidors provisionals a l’exterior i una planificació que minimitzi les afectacions.

Tant l’alcalde Francisco Romero com el portaveu d’ERC Vilafranca, Pere Sàbat, han destacat la rellevància d’aquesta actuació com a resposta a una demanda històrica dels clubs i esportistes, fruit del consens entre els dos grups municipals en els pressupostos de 2024.

